

Launch
Possession : Sept 2023
Launch
Possession : Sept 2023
Shaniwar Peth, Satara
By Shree Siddhivinayak Builders Satara
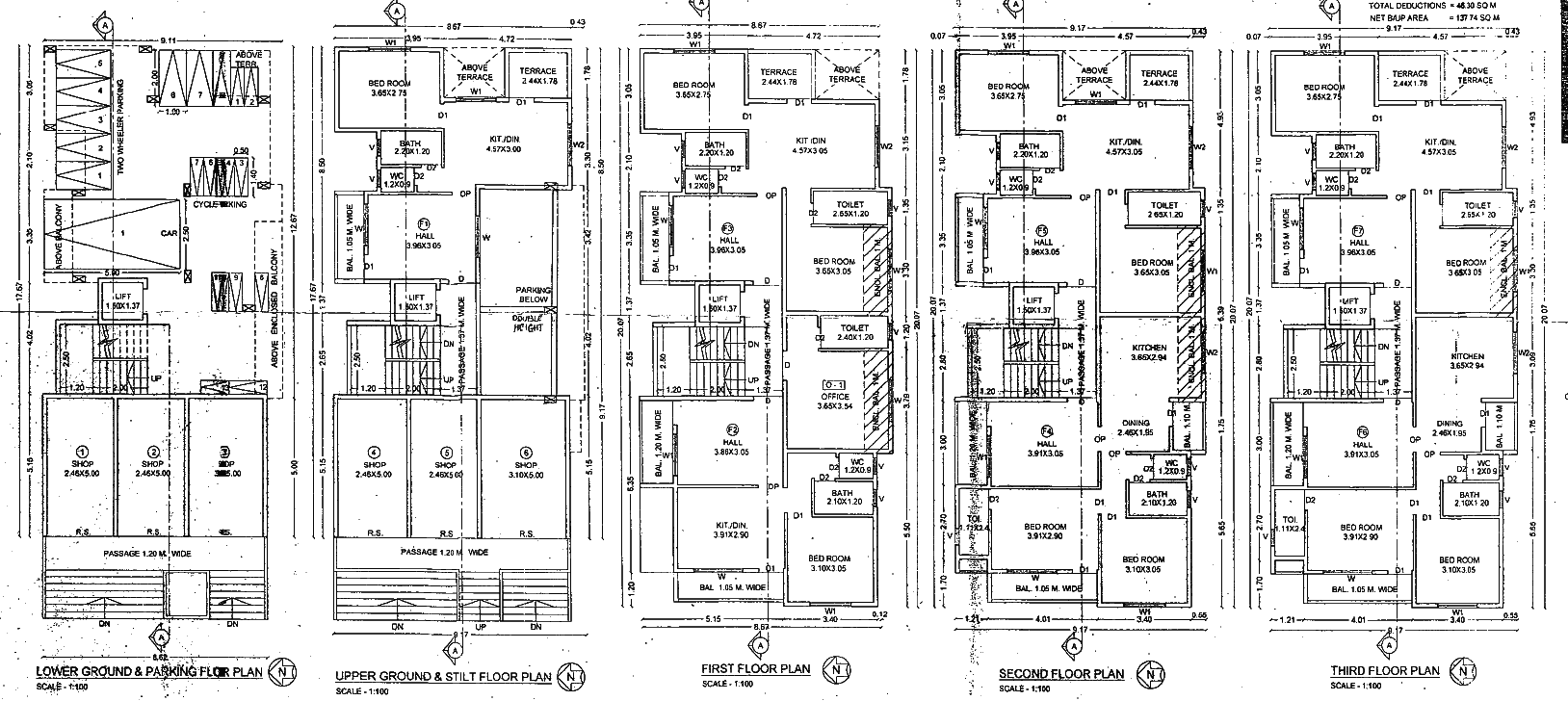
Configuration
1, 2 BHK
Builtup area
502 - 723 sq ft
Possession Status
Launch
Possession Start Date
September 2023
Status
Launch
Availability
New
24 Hours Water Supply
Car Parking
Lift Available
Rain Water Harvesting
Sewage Treatment Plant

KURUT MIDC
1.85 Km
Kadam Petroleum
1.85 Km
Bharat Petroleum Petrol Bunk
1.97 Km
Kalidas Petrol Pump
2.05 Km
Badhiye Petrol Pump
2.05 Km

Total Projects
1
Batra House, Plot No. 52, Institutional Area, Sector 32, Gurugram, Haryana, 122003
Made with Love